Blygatan 25

Norrköping, Övrigt / Lager / , 4425 kvm

  • Storlek
    4425 kvm
  • Lokaltyp
    Övrigt / Lager /
  • Ort
    Norrköping
  • Område
    Ingelsta Industriområde.
  • Adress
    Blygatan 25

Beskrivning

Logistikfastighet med fryslager i handels -och industriområdet Ingelsta i Norrköping.
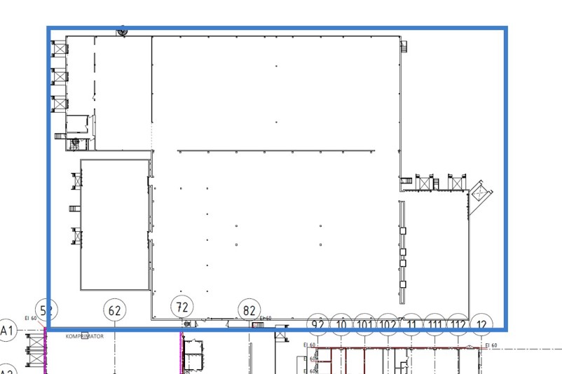
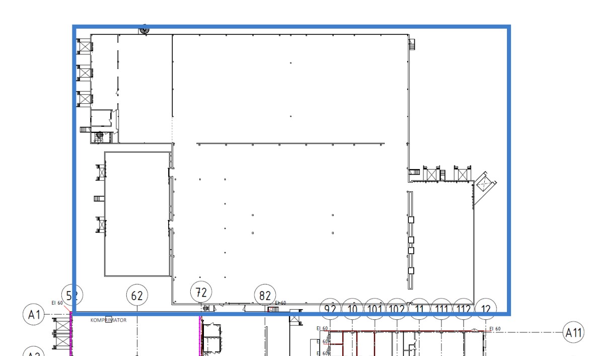
Fryslager med höglager om 12m takhöjd på 3500kvm.
Cirka 2,8m takhöjd på in-/utlastningsytorna som är 925kvm. Pallställage i hela ytan. Tillhörande personalutrymmen, omklädningsrum och kontor om 435 kvm.

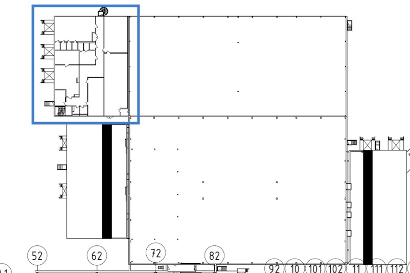
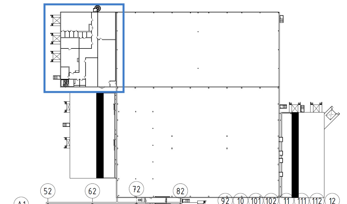
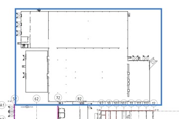
Planlösning

Ledig lageryta på ca 3500 kvm, tillhörande kontorsyta, personalutrymmen och omklädningsrum på ca 435 kvm, belägen på plan 3 och fryslager på ca 3500 kvm.

Kommunikationer

Fastigheten gränsar mot E4:an och ligger nära E6/E22.

Parkering

Cirka 300 p-platser för personbilar.

Uthyrningsinformation

Vi erbjuder givetvis marknadsmässig hyra och tar gärna en dialog kring kostnader utifrån omfattning och nivå på anpassningar av lokalen.

Karta

Kontakt

Therese Nordigårds

Therese Nordigårds

Kommersiell förvaltare

0730-70 22 46 therese.nordigards@catena.se

Intresseanmälan

Färdigt meddelande
Meddelande
Företag
Namn
Mobilnummer
Email