Lodgatan 9 / Tånggatan 6 

Malmö, Kontor / Lager / , 6000 kvm

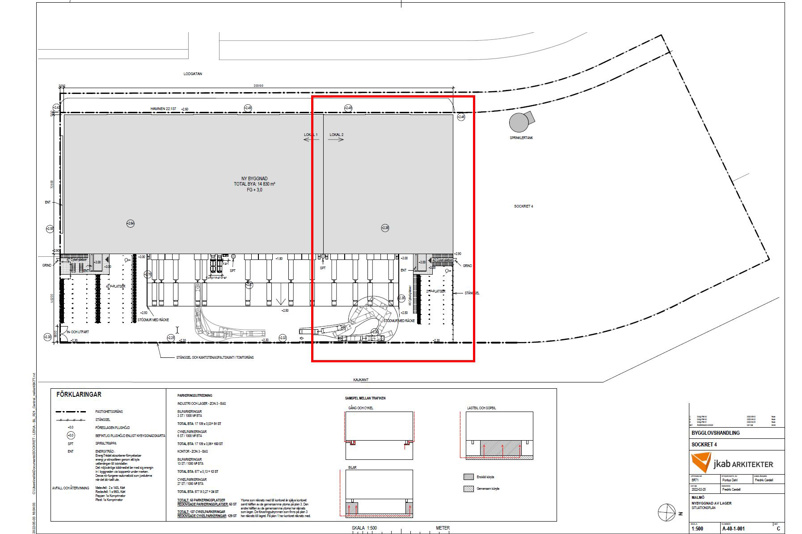
  • Storlek
    6000 kvm
  • Lokaltyp
    Kontor / Lager /
  • Ort
    Malmö
  • Område
    Malmö
  • Adress
    Lodgatan 9 / Tånggatan 6 
  • Miljö
    Miljöbyggnad

Beskrivning

Unik möjlighet - citynära lager och kontor i Malmös hamnområde. Det är under uppförande och färdigt för inflyttning årsskiftet 2023-2024. Du har möjlighet att vara med och utforma kontoret efter dina behov och önskemål. Här finns goda pendlingsmöjligheter med endast 2 km till Malmö Centralstation och stadsbuss inom promenadavstånd.

Planlösning

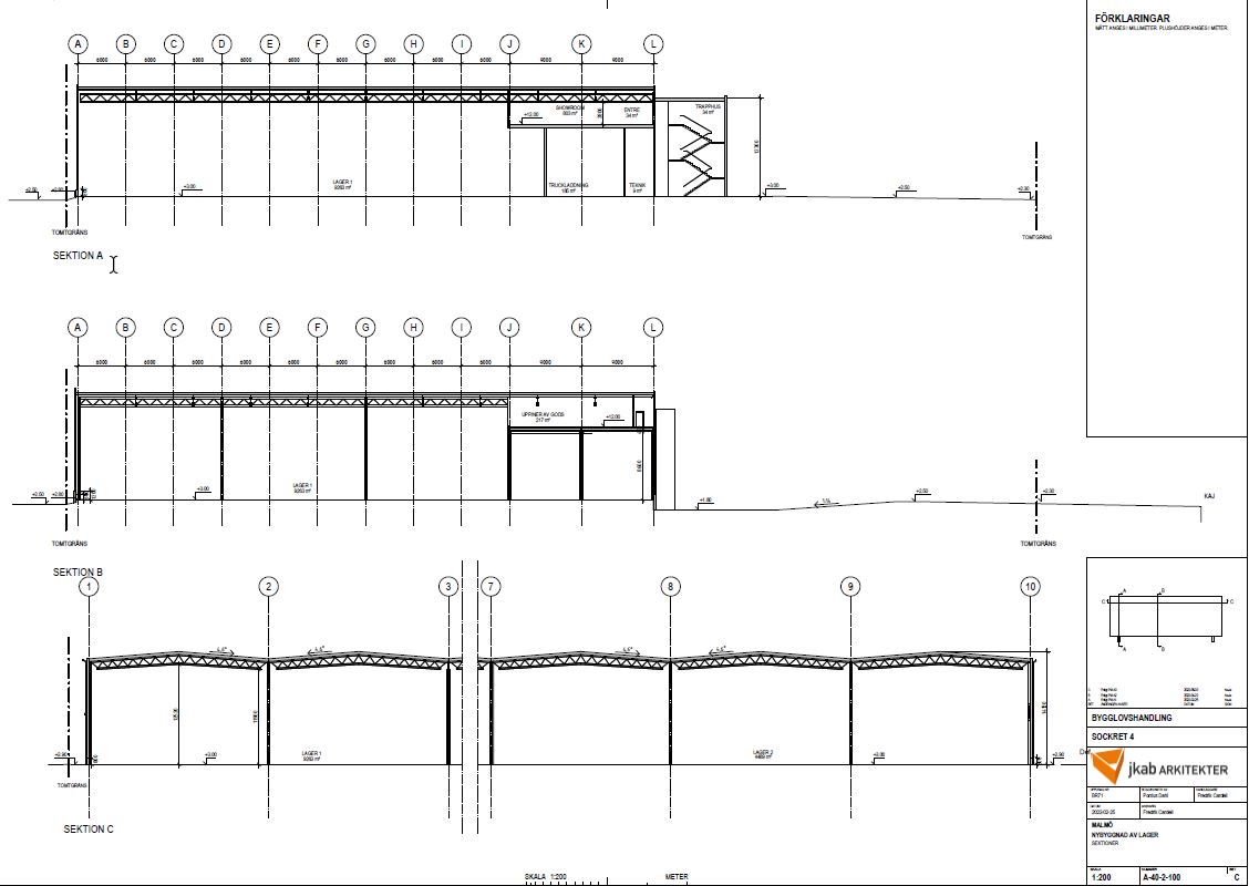
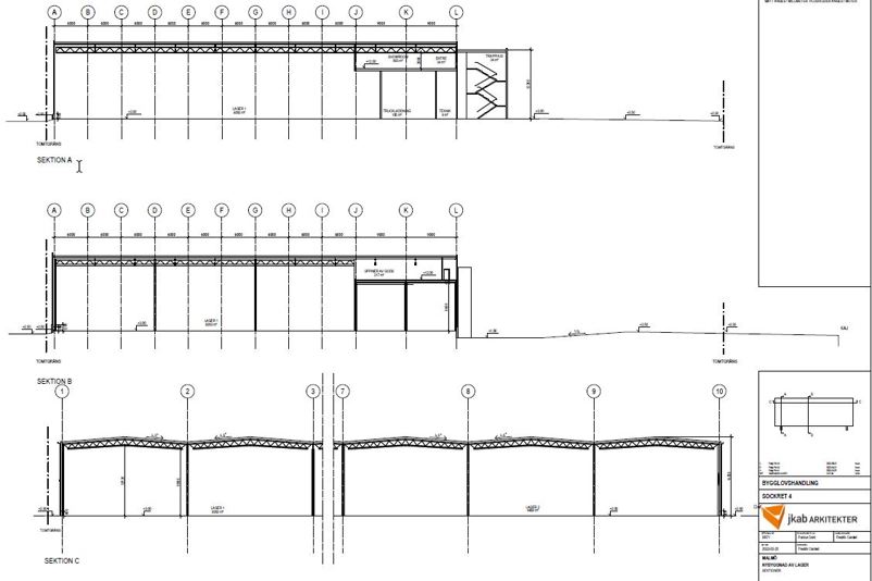
Lager: 4850 kvm, varav 3600 kvm med 11,7 meter fritt under balk.
Entresolplan: 1200 kvm.
Upp till 8 lasthus.

Vägbeskrivning

Hamnen, Östra Hamnen

Kommunikationer

2 km till Malmö Centralstation. Stadsbuss inom promenadavstånd.

Uthyrningsinformation

Vi erbjuder givetvis marknadsmässig hyra och tar gärna en dialog kring kostnader utifrån omfattning och nivå på anpassningar av lokalen.

Tillträdesinformation

2024-01-01

Karta

Kontakt

Fredrik Renå

Fredrik Renå

Regionchef Syd

0727-434544 fredrik.rena@catena.se

Intresseanmälan

Färdigt meddelande
Meddelande
Företag
Namn
Mobilnummer
Email