Bultgatan 27

Kungälv, Kontor / , 1400 kvm

  • Storlek
    1400 kvm
  • Lokaltyp
    Kontor /
  • Ort
    Kungälv
  • Område
    Rollsbo, Kungälv
  • Adress
    Bultgatan 27
  • Miljö
    BREEAM in Use

Beskrivning

Bulten 1 är en kombinerad lager- och kontorsfastighet på Bultgatan 27 i Kungälv. Den erbjuder en effektiv lösning för företag som behöver både lager och/eller kontorsfaciliteter. Med närhet till E6-motorvägen och andra transportleder möjliggör fastigheten snabb och smidig varudistribution.
Se 360 drönarvy

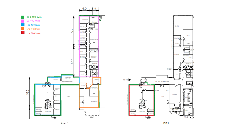
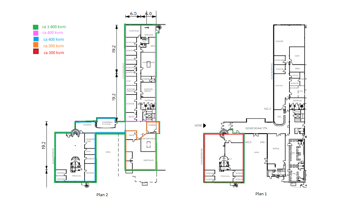
Planlösning

Bulten 1 erbjuder flexibla alternativ för uthyrning av kontor med en total yta på ca 1 400 kvadratmeter. Det finns även möjlighet att hyra en mindre del av kontoret med en minsta yta på ca 300 kvadratmeter. Förutom kontor finns också möjlighet att hyra lagerutrymme. Fastigheten är utrustad med både sprinklersystem och brandlarm för att säkerställa trygghet och säkerhet.

Beskrivning av ytor

Här kan du gå på rundvandring i lokalen: https://rundvandring.kasa360.se/6000kvm-Bultgatan27

Vägbeskrivning

Bultgatan ligger centralt i Rollsbo industriområde med cykelbana samt busshållplats utanför.

Parkering

Goda parkeringsmöjligheter finns.

Uthyrningsinformation

Vi erbjuder givetvis marknadsmässig hyra och tar gärna en dialog kring kostnader utifrån omfattning och nivå på anpassningar av lokalen.

Tillträdesinformation

2024-07-01 med möjlighet för tidigare inflytt

Länksamling

Karta

Planlösning

Planlösning

Kontakt

Lovisa Wångdahl

Lovisa Wångdahl

Kommersiell förvaltare

0763-11 55 75 lovisa.wangdahl@catena.se

Intresseanmälan

Färdigt meddelande
Meddelande
Företag
Namn
Mobilnummer
Email