Brisgatan 4

Karlstad, Kontor / Lager / , 11280 kvm

  • Storlek
    11280 kvm
  • Lokaltyp
    Kontor / Lager /
  • Ort
    Karlstad
  • Område
    Örsholmen
  • Adress
    Brisgatan 4

Beskrivning

Effektiva lager- och logistiklokaler som är möjliga att anpassa utifrån hyresgästens verksamhet.
Se 360 drönarvy

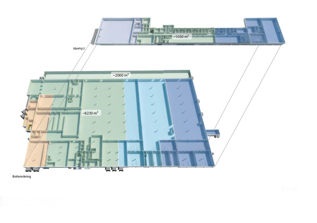
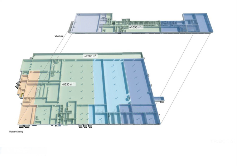
Planlösning

Lager om 8 230 kvm och kontor om 170 kvm. Delar av ytorna är anpassade för kyl/frys.

Uthyrningsinformation

Vi erbjuder givetvis marknadsmässig hyra och tar gärna en dialog kring kostnader utifrån omfattning och nivå på anpassningar av lokalen.

Tillträdesinformation

Tillgängligt omgående.

Karta

Bilder

Planlösning

Planlösning

Kontakt

Ulf Pettersson

Ulf Pettersson

Kommersiell förvaltare

0730-70 22 55 ulf.pettersson@catena.se

Intresseanmälan

Färdigt meddelande
Meddelande
Företag
Namn
Mobilnummer
Email